「おうち時間」増で、リフォームや趣味に取り組む人が急増 成功の鍵は?~様々な事業を紹介する「積水ハウス ストーリー」の 最新情報を公開~
積水ハウスの様々な事業を紹介する「積水ハウス ストーリー」の公開を開始しました。
お客様の戸建て住宅への想いや、商品開発への想いを、毎回テーマを設定してご紹介します。
第20弾として4月25日に、積水ハウスが提案する、「リフォーム」を取り入れたご家族についてのストーリーを公開しました。

「おうち時間」の増加で「個の空間」のニーズが高まる
新型コロナウイルス感染症の蔓延によって、私たちの日常生活は大きく変化しました。
自宅で過ごす時間が長くなり、ストレスを感じる人が増える一方で、この「おうち時間」をプラスに変えようと考える人も多くなっています。
内閣府の2020年の調査(※1)によると、感染症の拡大をきっかけに「新たな取り組みを始めた」という人が5割を超えています。多様な取り組みの中でも「家の修繕等、今までやれなかった日常生活に関わること」に取り組んだ人が3割近くおり、「本格的な趣味」に挑戦した人も16%に達していました。

また、内閣府が継続的に行っている「新型コロナウイルス感染症の影響下における生活意識・行動の変化に関する調査(※2)」の第4回調査の結果では、コロナ禍での新たな取り組みという問いに対し「本格的な趣味に取り組むために家の修繕=リフォームを行う」がトップにあがっています。
ライフステージの変化でリフォームを行うケースは、これまでも数多くありましたが、最近では「趣味」や「自分だけの空間の確保」というキーワードがリフォームでも重視されてきています。コロナ禍での生活は「おうち時間」を「快適な時間」にするための、これからの自分らしい暮らしを考え直すための、そんな好機と言えるのかもしれません。
(※1)「新型コロナウイルス感染症の影響下における生活意識・行動の変化に関する調査」(2020年/内閣府)より
https://www.meti.go.jp/statistics/toppage/report/minikaisetsu/hitokoto_kako/20210528hitokoto.html
(※2)内閣府「第4回 新型コロナウイルス感染症の影響下における生活意識・行動の変化に関する調査」より
https://www5.cao.go.jp/keizai2/wellbeing/covid/index.html
定年時のリフォームは趣味のための「工房」と「客間」がポイント
群馬県にお住まいの富沢 勝典・由美子さんご夫妻は「家のリフォームが“人生そのもののリフォーム”だった」とおっしゃいます。きっかけは由美子さんの早期退職でした。
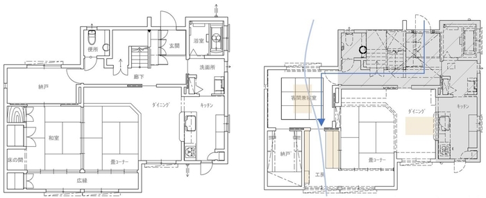
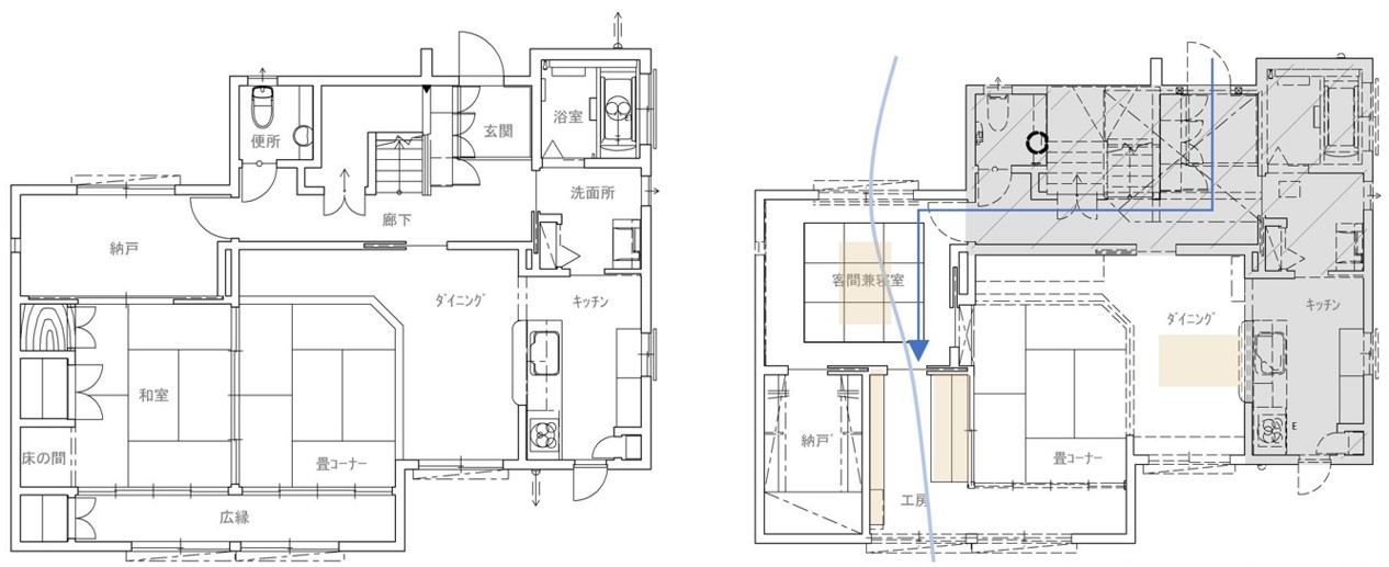
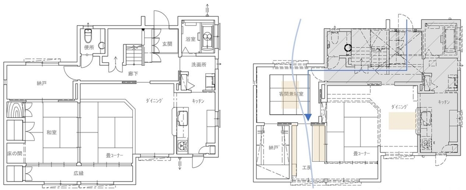
共に中学校で教員を務めていたお二人が家を新築されたのは19年前の2003年6月になります。間取りは2SDK(※3)。小さな娘さんが習い始めたピアノを弾くための部屋もつくりました。
しかしその娘さんも東京の大学に進学してしまうと、夫婦二人だけの生活となりました。そして由美子さんは勝典さんよりも一足先に早期退職することを決意し、第2の人生を歩み出しました。勝典さんはこれをきっかけにリフォームを検討したそうです。2018年ごろのことです。「退職したら家にいる時間が増えるので、趣味の裁縫や小物作りができる場所がほしい」と考えていた由美子さんに対する勝典さんからのプレゼントだったそうです。
ちょうど同じタイミングで、勝典さんの教頭就任が決定したため「お客様が増えるだろうから、新しい客間がほしい」という希望も加わりました。
リフォームは普段使わない部屋の部分改装という形で進められ、由美子さんの工房も長い間、荷物置き場となっていたダイニングに隣接する和室(奥の間)を改装したものです。工房には由美子さんの作品が飾られ、大きなガラス窓で仕切られたダイニングからも作業の様子や作品を見ることができるようになっています。工房とダイニングを仕切る窓ガラスをよく見ると…。ガラス窓の四方にステンドグラスがはめ込まれていますが、これは由美子さんの亡きお母様の手作りです。このリフォームには、いたるところに家族の思い出がちりばめられています。

客間もまた工夫を凝らしています。それまで客間として使用していた和室は、どうしても家族だけの私的空間であるダイニングを経由しなければならず、来客時には不便を感じていました。
そこで家の北西にあった納戸を和室に移し、納戸のあったところに新たに出入り口を設けて来客専用の動線をつくり、しばらく使われていなかった娘さんのピアノ部屋を客間にリフォームしました。これならダイニングを経由しなくても直接客間にいくことができます。この客間は将来、夫婦の寝室としても使用できる設計になっています。

(※3)SDKの「S」は納戸やサービスルーム、フリールームなどといわれる部屋のこと。荷物や衣類などを収納する部屋のことで、狭いものから広いものまで間取りによってさまざま。
外に出られないストレスは新しい工房と客間で吸収
リフォーム工事を始めたころから新型コロナが流行し始め、リフォームが完了した2020年6月には、買い物すら気軽に出られない状況になっていました。
「退職したらあちこち旅行したいと計画していたのですが、すべて白紙になってしまい、途方に暮れてしまいました。そんな私に新しい生きがいを与えてくれたのが、新しくできた工房と客間だったのです」と由美子さん。荷物置き場だったとは思えないほど明るく広々とした工房で、趣味の裁縫に没頭。一息入れたいときは、お茶を飲みながらぼーっと庭を眺めます。
「ああ、うちの庭ってこんなにきれいだったんだ。いろいろな花が咲いているんだ」と初めて気がつきました」
由美子さんはリフォームをきっかけに茶道や着付けなどこれまでやってこなかったことにも挑戦するようになりました。客間は当初、勝典さんのために作られたものでしたが、やって来るのは由美子さんのお客様ばかりだとか。
「近くに私が勤務していた学校があるので、かつての同僚たちがときどき訪ねてきます。コロナ禍で学校も難しい対応を迫られ、教員もストレスが溜まっているのです。ちょっとした相談事などがあると話をしにやってきて、お互いにストレスを発散しています」
家でじっとしていられない性格の由美子さん、ところがコロナで長い間外出ができない生活が続きます。そんな状況でも日々楽しく暮らすことができたのは、リフォームで誕生した新たな空間のおかげでした。

リフォームで家族全員の気持ちと暮らしに大きな変化
学校の責任者として出勤せざるを得ない勝典さんにとっても、リフォームは大きな活力につながっているようです。
「毎朝、妻の工房で新聞を読んでから出勤します。朝日の当たる庭が、実に気持ちいい。これまでは私の背広を吊したハンガーラックが縁側にズラリと並んでいて、ほとんど庭が見えなかったのです。それらは、新しく誕生したクローゼットにすべて収納され、家がすっきり広々としました。仕事から帰ってくると、客間で着替えてひと息つくのですが、これがオンとオフの良い切り替えになります。リフォームするだけで、毎日の気分がこんなに変わるのかと、自分でも驚いています」
「娘にも大好評でした」と由美子さんは言います。
「帰省した際に客間を見て、『実家が旅館になった!』と大喜びしていました。コロナが少し落ち着いてから、お友達を呼んでお泊まり会をしたいと計画しています。家族全員にとって、良いことずくめのリフォームでした」

「趣味の空間」は、これからの時代に必要不可欠な存在
「心が豊かになった気がします。家って、本当に大切ですね」と感慨深げな勝典さん。「リフォームしていなかったら、自分がどうなっていたかわかりません」と笑う由美子さん。
お二人の言葉通り、家のリフォームが単なる改装改築ではなく、“心のリフォーム”となるケースが少なくありません。人生の節目で暮らし方を変えることで気持ちが変化し、住む人の人生まで変える。富沢邸のリフォームにはそんなパワーが秘められていました。
「個の空間」は決してぜいたくなものではなく、「ウィズ・コロナ」の時代を生きる私たちに必要不可欠なものかもしれません。みなさんも、この機に新たな何かに挑戦し、「自分らしく過ごせる空間づくり」をお考えになってはいかがでしょうか。
商品情報:
積水ハウス リフォーム
https://www.sekisuihousereform.co.jp/







