家事を楽にする“動線づくり”が共働き世帯の“強い味方”に ~様々な事業を紹介する 「積水ハウス ストーリー」の最新情報を公開~
積水ハウスの様々な事業を紹介する「積水ハウス ストーリー」の公開を開始しました。
お客様の戸建て住宅への想いや、商品開発への想いを、毎回テーマを設定してご紹介します。
第7弾として12月17日に、積水ハウスが提案する共働き家族が暮らす家「トモイエ」についてのストーリーを公開しました。

共働き世帯が主流に 在宅時間増で「家事の量が増えた」という不満も
女性の社会進出や経済情勢の変化などにより家庭のあり方や働き方が大きく変化したことで、共働き世帯は増加を続けています。1997年には共働き世帯が専業主婦世帯を上回り、2020年には1240万世帯と、専業主婦世帯の2倍以上となっています※1。

積水ハウスの調査では、そうした共働き夫婦が、暮らしの中で最も大切にしている時間は、「自分の趣味」や「疲れを癒しリラックス」、「ストレス発散」などよりも「家族との団らん」が最多となっています※2。忙しい生活の中で、家族と一緒に料理をしたり、食べたり、くつろいだり…。そんな家族との触れ合いの時間を大切にしたいと考えている人が多いのではないでしょうか。
その一方で、2020年にコロナ禍で在宅勤務をしている方に、在宅時間が増えたことで不満に思っていることを聞いたところ、第4位が「家事の量が増えた」ことでした。特に女性が、男性よりも負担を感じていることが分かっています※3。

(※1)内閣府 男女共同参画白書 令和3年版
https://www.gender.go.jp/about_danjo/whitepaper/r03/zentai/html/honpen/b1_s03_01.html
(※2)積水ハウス「共働き世帯の生活実態調査」(2018年)
(※3)積水ハウス「在宅中の家での過ごし方調査」(2020年)
https://www.sekisuihouse.co.jp/ouchi/stay/investigation/
効率よく家事をするカギは“動線” 洗濯動線は極力短く
お互いに仕事で忙しい共働き世帯だからこそ、効率的に家事をすることは重要なこと。そのカギの一つが、“家事の動線”です。
家事と言っても色々ありますが、中でも洗濯は、洗う、干す、取り込む、たたむ、しまう、と一連の作業が分散しているので、動線が長くなりがち。特に、濡れて重くなった洗濯物を運ぶ「洗う~干す」のための歩数が最も多いのです。脱水後の衣類の重さは、乾いているときの約1.4倍。4人家族だと約7kgにもなると言われています。皆さんの中にも、洗濯物を干すために洗濯機置き場から物干し場まで重い衣類を毎日運んでいる人も多いのではないでしょうか。
洗う場所と干す場所を近くにして、濡れて重い洗濯物を最短で運ぶ工夫をすることが、家事を楽にするカギとなるのです。

大阪府に住む共働きのY様ご夫婦は、新しく家を建てる際に、この洗濯の「動線」にこだわった2人。
「以前住んでいた家では、洗濯機と物干し場となるベランダが住まいの中で正反対の位置にあって、毎日重い洗濯物を運ぶのが大変でした。」妻のEさんは、洗濯に負担を感じていたと言います。

収納・身支度などの生活動線と家事動線の工夫でさらに快適に
夫のYさんが億劫に感じていたのが、帰宅後の着替え。
「すぐにスーツが脱ぎたくて、ついダイニングの椅子にジャケットを掛けていました。」
自分の部屋まで行って着替えて、クローゼットにスーツをしまうことが面倒だったそうです。積水ハウスの調査でも、Yさんのように「自分の部屋に戻って着替えるのが面倒」と思っている人は半数を超えており、特に共働き世帯の方がそう感じている人がより多いことが分かっています。

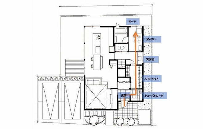
そこで、Y様ご夫婦は、玄関からシューズクローク、通り抜けのできるクローゼット、洗面室、ランドリーまで一直線につながった動線を実現しました。

こういった動線にすることで、Y様の家では、帰宅後はシューズクロークで靴を脱いで、そのまま通り抜けできるクローゼットで部屋着に着替え、その後、洗面室に進み手洗いをするのが日課に。そして洗濯室の奥にあるランドリーで洗濯をして、そのまま室内干しができるように物干し金物も設置したほか、シーツなどの大きな洗濯物はランドリーから続く勝手口外のポーチで干すことができるように。洗濯の動線も短くなり、「家事が楽になった」と言います。

また、乾いた服はハンガーに掛けそのままクローゼットに収納。下着やパジャマなどは、浴室前のランドリー内の収納に入れ、お風呂上りも快適に着替えられるようになりました。
「夏場は玄関からお風呂に直行してシャワーですっきりできますし、コロナ禍で衛生面に気を遣うようになってからも、洗面で手を洗ってからリビングに行けるので、この間取りで本当によかったです。」
毎日忙しく働く共働き世帯だからこそ、効率よく家事をすることで、家族で楽しむ時間が生まれる―。積水ハウスが提案する共働き家族が暮らす家「トモイエ」には、どんな時間帯や天候でも効率よく洗濯作業ができる空間設計の工夫をはじめ、お料理や掃除といった家事や、身支度をスムーズに行えるアイデアが詰まっています。
“家事の動線”を工夫することで、家族みんなで家事をラクして一緒に楽しめる時間を増やす暮らしを考えてみてはどうでしょうか。
商品情報
積水ハウスのライフスタイル提案 共働き家族が暮らす家「トモイエ」
https://www.sekisuihouse.co.jp/kodate/lifestyle/houseworkshare/









