働き方改革を推進する、地方拠点オフィスのリノベーションを実施 広島オフィス【U BASE PEACE】グランドオープン
~札幌、横浜、名古屋、仙台に続き、主要地方拠点をリノベーション~
株式会社 USEN-NEXT HOLDINGS(本社:東京都品川区、代表取締役社長CEO:宇野 康秀、以下、当社)は、より一層の業務効率化を図るとともに、今後の業容拡大に備えるため、USEN-NEXT GROUPの地方拠点オフィスのリノベーションを2019年5月から実施しています。本日12月16日に広島オフィス【U BASE PEACE(ピース)】をグランドオープンしました。以降、全国拠点のリノベーション・リロケーションを順次推進していきます。



当社グループでは、働き方改革推進の一環として、2018年6月より「Work Style Innovation(以下、WSI)」と名付けた新人事プロジェクトを始動。社員が既成概念にとらわれずイキイキとエネルギッシュに働くことができるよう、グループ各社でフレックスタイム制度やテレワーク勤務制度を導入し、時間と場所という制約から解放した仕事本位の自由な働き方を推奨しています。
2018年7月には東京本社のオフィス移転(港区⇒品川区)を実施し、“USEN-NEXT GROUP HEAD OFFICE”が完成。分散していたグループ企業の拠点を集約するとともに、日々の業務内容に適したワークスペースが選択可能な環境づくりに努めてまいりました。
“USEN-NEXT GROUP HEAD OFFICE”に引き続き、地方拠点オフィスのリノベーションに着手。5月の札幌オフィスを皮切りに、横浜、名古屋、仙台とすでに4つの主要拠点をグランドオープン。今回は、広島オフィスが“U BASE PEACE”として新たに生まれ変わりました。東京以外の地方拠点にも「WSI」というソフト面が最大限活かされるハード面が整い、社員一人ひとりの革新的なワークスタイルの推進が可能となります。
業務の生産性向上を推し進めつつ、この新オフィスでグループ社員一丸となって、さらなる飛躍を目指してまいります。
地方拠点オフィスのリノベーション:Innovative Office プロジェクト
イノベーティブに新しい価値を創造・発信し続ける「基地」
=地方拠点オフィス“U BASE”
当社グループで取り組む働き方改革のスローガン「かっこよく、働こう。」をキーテーマに、社員がイキイキと働くことができ、最も効率よく、最も快適に、最もイノベーティブに働ける場所としての“Office”を創出することを目指します。
各地方拠点にはその土地を象徴するイメージの名称を設定し、“Office”をデザイン。その日のスタイルにあわせた自由な働き方を推進し、フレキシブル&コミュニケーション溢れるワークスタイルへと導く機能を整備したスマートなオフィス環境を整えます。
広島オフィス U BASE PEACE(ピース)

Concept
平和都市・広島の地から、日本や世界へ羽ばたいていく社員のふるさとのような場所でありたいという想いから“U BASE PEACE(ピース)”と名付けました。
また、オフィスロゴには、平和を象徴する【千羽鶴】をモチーフに採用。千年の寿命を持つと言われ、群れをなして力強くしなやかに飛び立つ【鶴】のように、“グループ社員が一致団結し、未来へ向かって長く活躍し続けられるように”という願いを込めています。
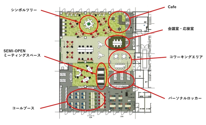
入口を抜けた先の社内スペースは一部開放し、当社グループと関わりのあるお客様やお取引様などが自由に利用できるコワーキングエリアを設け、人と情報の交流によってイノベーションを生み出す場と位置付けています。
オフィス概要
自分のスタイルに応じて時間や場所を選択できる働き方「ABW(Activity Based Working)」を取り入れた完全フリーアドレスで、業務の生産性や効率性を高める機能的な“office”であるとともに、ここで働く社員にとって愛着がある、広島を象徴するデザイン・色合いを取り込み「この“office”でかっこよく、働きたい」と思うことができる社員のモチベーションにも寄与する仕様となっています。
・自分のスタイルにあわせて働く場所が選べるフリーアドレス
集中した作業時は窓側のソロブースで、チームプロジェクトやMTGはオープンなソファーブースで、リラックスしながらのメールチェックなどはCafeカウンターで・・・。業務内容やシチュエーションに応じた座席選択で、生産性や効率性の向上を図るとともに、「今日やるべきこと」に対する意識を持つことによって、業務への集中が高まる効果も期待できます。


・コワーキングエリアを設けて交流を創出
社内外問わず利用できる「コワーキングエリア」はカフェをイメージしたテーブル・イス・ソファを配し、寛ぎや憩いのスペースを演出。商談はもとより、ご来社されたお取引先様のすきま時間などにも利用可能。新たな人と情報の交流を創出します。大きなモニターも設置し、プレゼンテーションやセミナーなどにも活用できます。

・コールセンターブースを新設。周囲に気兼ねなく通話が可能に
メインフロアの並びにはコールセンターブースを設置。専用のコールセンターブースを構えることで周囲に気兼ねなく、集中して通話可能な環境が整いました。

・無駄な会議は不要!SEMI-OPENスペースを活用してミーティング時間の短縮を
執務フロア内にSEMI-OPENミーティングスペースを設置。コンパクトな社内外ミーティングで利用可。オープンなコミュニケーションスペースとしても活用できます。

・Cafeカウンターを設け、社員の交流を推進
社員交流を促進するため、Cafeカウンターを設置。コーヒーや軽食を無料で提供します。

・大きなプロジェクターからニュースやメッセージを配信
フロア内にはプロジェクターとサイネージを配置。グループインフォメーションの配信やミーティング時の資料、その他シチュエーションに応じた素材の投影など、各種状況に応じた利用が可能です。


・オフィスを取り囲む多数の観葉植物。グリーンを潤沢にちりばめ、心休まる空間を演出
広島市は被爆の後、目覚ましい復興を遂げる中で、水と緑が輝くうるおいのある平和都市の実現を目指し、豊かで美しい自然環境を生かしつつ、安全、快適で美しい都市景観を有する質の高い都市環境の創造に取り組んでいます。(※1)
広島オフィス「U BASE PEACE」は、そんな広島市のイメージにあわせてマイナスイオンたっぷりの美しい『緑』をフロア全体にちりばめています。オフィス内には生木のグリーンを多数配置し、平和都市【広島】のように、ここで働く社員が心休まる空間で緑に囲まれながら植物の生命力を感じてイキイキと働けるよう、演出しました。目にも優しいグリーンカラーは、リラクゼーション効果も。


(※1)参考:広島市役所HP「第1章 緑の基本計画とは」より
http://www.city.hiroshima.lg.jp/www/contents/1326865364819/
・U BASEの象徴となる 「シンボルツリー」
各拠点の中心に「シンボルツリー」(*全拠点に設置)を配置。フロアの中心から社員を見守ります。

・社員の想いを繋ぐ『折り鶴の壁』
メインフロアを一番奥まで進んだ突き当りには『折り鶴の壁』を設置。平和への祈りを込めて、オフィスから徒歩5分の場所に位置する広島平和記念公園「原爆の子の像」に捧げられた「折り鶴」を描きました。(※2)
「折り鶴」に託された【平和】への強い想いを望んで、当社の壁面にもデザインしました。


(※2)参考:広島市役所HP『折り鶴と「原爆の子の像」について』より
http://www.city.hiroshima.lg.jp/www/contents/1110438305305/
・顔認証システムを導入し、セキュリティも完備
メインフロアの入り口には高度なセキュリティを誇る顔認証システムを導入。顔以外にも、指紋や認証コードの登録も可能。本システム導入により、ストレスフリーでフロアの出入りが実現。

・アレンジメントやグリーンウォールでお客様をお出迎え
エントランスには広島ならではの色味で地域のオリジナリティを演出するアレンジメントを、エントランスからオフィスを望んだスペースにはグリーンウォールをそれぞれ配し、「水・緑・いのちの輝くまち ひろしまの実現」を掲げている【広島】を表現し、お客様をお迎えします。(※3)
グループロゴも大きなシンボルになっています。

(※3)参考:広島市役所HP「広島市緑の基本計画2011-2020」より
http://www.city.hiroshima.lg.jp/www/contents/1297301592406/
〒730-0051
広島県広島市中区大手町2-7-10
広島三井ビルディング 13F(1303号室)
*オフィスを移転しました。
(旧所在地)
〒730-0051
広島県広島市中区大手町2-11-2
グランドビル大手町9F

当社は、グループの総力を結集し、「必要とされる次へ。」のスローガンのもと、さらなる成長に向けて、新たなワークスペースからイノベーションを巻き起こし、新たな価値を創造し続けます。
USEN-NEXT GROUP リノベーション対象オフィス
札幌オフィス U BASE POLARIS
…2019年5月20日グランドオープン
横浜オフィス U BASE MARINA
…2019年5月20日グランドオープン
名古屋オフィス U BASE CASTLE
…2019年8月29日グランドオープン
仙台オフィス U BASE FOREST
…2019年9月26日グランドオープン
広島オフィス U BASE PEACE
…2019年12月16日グランドオープン
福岡オフィス
…2020年グランドオープン予定
and more…
※(参考)当社の働き方改革 WSI関連リリース一覧
・働き方改革 WSI 第一弾 リリース
https://usen-next.co.jp/newsrelease/2018/05/hd-work-style-innovation.html
・地方拠点オフィスリノベーション(札幌・横浜)リリース
https://usen-next.co.jp/newsrelease/2019/05/hd-ubase-polaris.html
・テレワーク・デイズに参加 リリース
https://usen-next.co.jp/newsrelease/2019/07/hd-telework.html
・新卒と中途の垣根を越えた新リクルーティングプログラム【GATE】 リリース
https://usen-next.co.jp/newsrelease/2019/07/hd-saiyou-gate.html
・地方拠点オフィスリノベーション(名古屋)リリース
https://usen-next.co.jp/newsrelease/2019/08/hd-ubase-castle.html
・地方拠点オフィスリノベーション(仙台)リリース
https://usen-next.co.jp/newsrelease/2019/09/hd-ubase-forest.html