人とチャレンジの行き交う場の創出を目指し、 ヒトカラメディアと雲南市ら4者で地域連携協定を締結。 まちをつなぐ「たすき株式会社」を地域住民と共に設立
株式会社ヒトカラメディア(代表取締役:高井 淳一郎、以下 ヒトカラメディア)、島根県雲南市(市長:速水 雄一、以下 雲南市)、三新塔あきば協議会(会長:上代 尊司)、雲南市商工会(会長:高橋 日出男)の4者で、雲南市内の地域課題解決と住民のくらしの豊かさの創造を資するための「地域連携協定」を2020年1月24日付けで締結しました。
今回の締結を機に、雲南市で取り組まれている「企業チャレンジ」に参画し、三新塔地区内の2棟の空き家を活用し、「働く」「泊まる」「食べる」「集う」の4つの機能を持つ施設を地域住民と共に創出します。また、本取り組みをより地域に根ざして実践すべく、地域住民の方々とともに、たすき株式会社(代表:高井 淳一郎、以下 たすき)を2020年2月4日に設立しました。

雲南市の企業チャレンジについて
雲南市では、住民の発想を自らが実践するための仕組み「地域自主組織」の取り組みをベースに、「子ども×若者×大人チャレンジの連鎖による持続可能なまちづくり」として、地域課題の解決・市民生活の幸福度向上を目指した様々な取り組みが盛んに行われてきました。その取り組みをより加速・進化させるため、今年度から「企業チャレンジ」が新たにスタートしています。「企業チャレンジ」とは、域内・域外の企業が雲南市を活動フィールドとして、地域と協働しながら社会課題解決・新たな価値創造を目指した様々なチャレンジを行い、社会実装まで目指す取り組みをいいます。5方よしを掲げ、市民よし、雲南市よし、参画企業よし、未来の参画企業よし、日本・世界の他地域よしとなるような取り組みを推進する試みです。
ヒトカラメディアと三新塔あきば協議会による取り組み
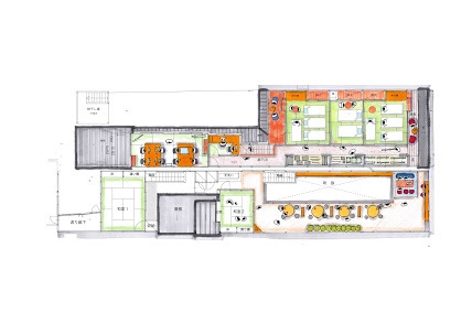
まちをつなげる取り組みの第一弾として、地域自主組織と連携しながら三新塔地区の商店街にある隣接する2棟の空き家を改修し、「働く」「泊まる」の機能を持つ施設と「食べる」「集う」の機能を持つ施設を作ります。「まちの縁側をつなげる」というテーマをもとに、ハード・ソフト両面で境界を緩やかに共有できる工夫を仕掛けていきます。
地域住民によるチャレンジが盛んに行われ、地域内だけでなく市外からも多くの企業・学生が訪れる雲南市において、本施設をひとつのきっかけとして、住民・行政・企業/大人・子ども/域内・域外、内外の垣根を超えた多様な交流を促し、人とチャレンジの行き交う拠点を創出します。
地域の住民とまちをつなぐ会社を設立
本取り組みをより地域に根ざして実践するべく、三新塔地区の地域住民の方々とヒトカラメディアで、新たに「たすき株式会社」を設立しました。2棟の空き家はオーナーからたすきが借り受け改修を行い、入居するパートナー企業・地域住民の方々と共にまちの賑わいを生み出すチャレンジを仕掛けていきます。
ヒトカラメディアが取り組む意義
ヒトカラメディアは成長や変化を求める企業に対し、オフィス移転をプロジェクト化し、拠点選び・場づくり・ワークショップなどのプロセスを通じて、普段なかなか向き合う機会のない企業のビジョンやメンバー同士の理解を掘り下げ、「チャレンジの当事者」を増やすきっかけを提供しています。立場や得意分野は違えど、ひとりひとりが自分なりにチームの課題に向き合える状況が、これからの企業活動には欠かせない要素のひとつだと考えています。
これは「組織」という観点で見ると、企業だけでなく地域にも当てはまります。行政・住民・企業が一体となって「課題解決に挑む人づくり」と「チャレンジの後押し」が盛んに行われている雲南市で、課題解決とまちの持続可能なにぎわいづくりのモデル構築を通じ、地域・企業・組織に提供できるナレッジを深めていくことを目指していきます。
一緒にプロジェクトに携わる仲間を募集!
ヒトカラメディアでは、本プロジェクトの企画・実現に深く関わってくれるメンバーを募集しています。本プロジェクトが目指す方向性の中で一緒にチャレンジしていきたい方のエントリーをお待ちしております。
https://www.wantedly.com/projects/414780
◆施設概要
オープン予定日 :2020年夏予定
所在地 :雲南市木次町
施設の用途 :飲食、宿泊、コワーキング、地域のコミュニティ活動
◆ヒトカラメディアについて
商号 : 株式会社ヒトカラメディア
代表者 : 代表取締役 高井 淳一郎
所在地 : 東京都目黒区東山1-5-4 KDX中目黒ビル 5階
設立 : 2013年5月
事業内容 : オフィス移転サポート、空間プランニング、ビルオーナー支援
宅地建物取引業免許: 国土交通大臣(1)第8878号
資本金 : 3,000,000円
公式サイト : https://hitokara.co.jp
◆たすき株式会社
商号 : たすき株式会社
代表者 : 代表取締役 高井 淳一郎
所在地 : 島根県雲南市木次町木次8-6
設立 : 2020年2月
事業内容 : 地域に根ざした場づくり、企画全般
資本金 : 5,000,000円
公式サイト: https://tasuki.town












