“築地バレー構想”を提唱するねこじゃらし、 キッチン付ワーク&イベントスペース DMZ CAFEの 2019年7月7日(日)よりイベント利用貸出開始
~築地駅より徒歩1分、最大80名収容可能~
映像制作業界向けのクラウドサービスを提供する株式会社ねこじゃらし(所在地:東京都中央区築地、代表取締役:川村 ミサキ、URL: https://www.nekojarashi.com/ 、以下 ねこじゃらし社)が運営する、キッチン付ワーク&イベントスペース DMZ CAFEのイベント利用貸出を、2019年7月7日(日)より開始します。

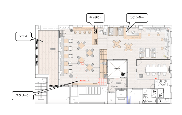
キッチン付ワーク&イベントスペース DMZ CAFE
ねこじゃらし社は“集中できるシェアオフィス”「DMZ WORK」事業を開始し、2018年4月にはリラックスしながら作業ができるカフェスペース DMZ CAFE、2019年3月にはクリエイターのための完全会員制ワークスペース DMZ WORKをオープンしています。
DMZ CAFEは、キッチンやバーカウンター、テラスにはハンモックも装備しており、最大80名まで収容できます。セミナーや発表会だけでなく、キッチンを使った懇親会やパーティでの利用も可能です。
DMZ CAFEは、そこに集まるクリエイターや、他の異なる職業・仕事をもつ利用者が交流し刺激し合うことで、築地から新しいクリエイティブが生まれていく発信地にしていきたいと思っています。
イベント利用貸出 概要

・面積
213.65平米
・収容人数
着席 40~50席
スタンディング 80名
・利用可能時間
<平日>18:00~23:00
<土日祝日>9:00~22:00
・利用料金(税抜)
<平日>
基本料金 1時間:20,000円
パック料金 3時間:46,800円/5時間:69,800円(18:00~23:00)
<土日祝日>
半日パック 3時間:46,800円/6時間:89,800円
全日パック 13時間:158,000円
・貸出可能設備
テーブル9台、丸テーブル2台、スタッキングチェア30脚、チェア8脚、
スクリーン120インチ(幅2,438mm×高さ1,829mm)、プロジェクター1台、
音響機器(ワイヤードマイク1本、スピーカー)、ホワイトボード2台
・常設設備
トイレ(男女1箇所づつ)
キッチン
築地バレー構想とは?
ねこじゃらし社は、人と人が交差してこそクリエイティブな発想が生まれるという想いのもと、創業からクラウド上のワークスペースサービスを提供してきました。そのねこじゃらし社が、リアルなワークスペース提供の最初の拠点として築地を選んだのは、新たなクリエイティブを生み出す可能性を秘めた、文化の交差する場所の象徴であるからです。
ねこじゃらし社の提唱する“築地バレー構想”では、築地場内市場が移転した後の築地を、ITとクリエイティブが生まれる「食の街から、職の街へ」さらなる発展を目指しています。
株式会社ねこじゃらし会社概要
代表者 :代表取締役 川村 ミサキ
設立 :2006年3月3日
所在地 :東京都中央区築地3丁目7番1号 TSUKIJI GRANDE 5階
事業概要:
●映像制作の働き方を変えるプロ仕様のクラウドワークスペース
「JECTOR MOTIONBASE( https://www.motionbase.jp/ )」の開発・運営
●クリエイティブ制作業務を効率化するクラウドワークスペース
「JECTOR( https://www.jector.com/ )」開発・運営
●映像処理クラウドサービス「Setaria.cloud( https://setaria.cloud/ )」の開発・運営
●法人向けクラウドバックアップ・統合データ保護
「BackStore( https://www.backstore.jp/ )」販売・運営
●クリエイターのための“集中できるシェアオフィス”事業「DMZ WORK( https://dmzwork.com/ )」の運営







