名古屋エリア初“リノベーション体感型”ショールーム4/18誕生!
~パーティ・イベント・撮影・セミナー等に対応のレンタルスペースとしても利用可~
愛知県下のリーディングカンパニーとして、住宅の買取と再販を手がける株式会社リアル(所在地:名古屋市中区新栄、代表取締役:片田 一幸)が、買取再販業者としては名古屋エリア初となる体感型のショールーム、名称『REALリノベスタジオ』を4月18日(木)にグランドオープンいたします。

リアル新栄ビル
『REALリノベスタジオ』:2階・4階(屋上・ルーフバルコニー含む)
所在地: 名古屋市中区新栄2丁目1番34号
Web : http://www.real-inc.jp
リノベスタジオの営業時間:10:00~17:30(時間貸しの場合は応相談)
2F(ミーティングルーム・モデルルーム)

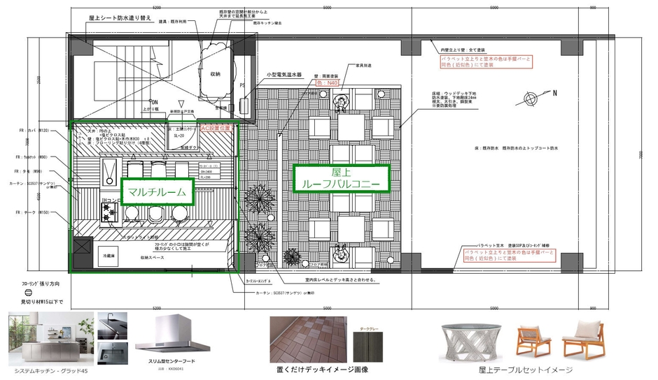
4F(マルチルーム・屋上ルーフバルコニー)

コンセプト・ビジョン
リノベーションを身近に体験していただくことを目的に、最新型の住宅設備を設置したリノベーションのスペースを提供いたします。リアルのリノベーションを施した住宅である『リアリノ』をご検討いただく方、新築にはない“オンリーワン住宅”を創りたい方、リアルの販売住宅(リアリノ)を仲介する不動産業者様、及びスペースを利用したい方を対象として、見学と有料での時間貸しを行います。リノベーションの魅力を体験するための体感型のスペースとして、幅広い方に利用していただきたいと考えています。
背景
自社ビルとして取得当初は築56年のRC(鉄筋コンクリート造)4階建を、1階を自社の事務所として使い、2階の一部を賃貸していました。このたび2階の退去に伴い事業であるリノベーションをさらに体験できる場所にするため、構想に1年を費やしました。年月を経過した建物でも躯体を活かした空間設計を行えば新たな魅力を発見できます。都心からの利便性が良い新栄という立地であるため、リノベーションを検討している方だけでなく、ワークショップやセミナー、撮影スタジオ、レンタルスペースとして使いたい方にもご利用いただけるスペースを目指すことにいたしました。
2階リアリノ モデルルーム完成イメージパース

2階リアリノ モデルルーム平面図

サービスの概要
幅広いニーズに対応することを目的として、2階と4階の3部屋をショールーム及びレンタルスペースとして提供いたします。
各スペースは、2階のモデルルームとミーティングルーム、4階のマルチルームの3セクションに分かれています。モデルルームとマルチルームには住宅設備のサンプルとして、最新型のシステムキッチンを3種類、バスルームを1種類、洗面化粧台を2種類、トイレを3種類備えています。最新式の80インチ対応プロジェクターも2ヶ所備えており、メディアルームとしてもご利用いただけます。また、4階のマルチルームではIoTの体験ができる「アイヘムス」を設置しています。施設をご利用の方には建物内に限りフリーwifiをお使いいただけます。
壁はクロス、塗り壁、タイルの比較していただけるようになっています。天井は2階部分の大半がスケルトンとなっており、スポットライト照明器具を設置しています。デザイナーズ家具も空間に合わせてコーディネイトを行いました。
室内には植栽体験をしていただける生花を飾ります。生花の監修はゴールデンチャイルドガーデン(名古屋市中区新栄)が行い、季節に合わせて提供していただきます。床には、2階にフローリング10種、4階にフローリング4種とオープンスペースとなっている屋上ルーフバルコニー部分にはウッドデッキを敷いています。
設計・デザイン・インテリア
2社にデザイン・設計・監修を依頼しました。メイン設計として、2階のミーティングルームと4階のマルチルームを9株式会社(所在地:大阪市西区、代表取締役:久田 一男、読み:ナイン株式会社)。2階のモデルルームを菊地デザイン事務所(所在地:名古屋市中区、代表:菊地 規雄)がデザイン・設計を行っています。
インテリアはテアトル(所在地:名古屋市天白区、代表:高木 佳恵※)にコーディネイトを依頼しています。
※「高木 佳恵」の「高」は「はしごだか」が正式な表記となります。
[2階ミーティングルーム完成イメージパース]

[2階商談スペース完成イメージパース]

以下、事前予約にて内覧を受付けています。
[問い合わせ先]
株式会社リアル
MAIL : rea-reno@real-inc.jp
フリーダイヤル: 0120-33-6964
TEL : 052-228-6000
FAX : 052-228-6003
『REALリノベスタジオ』:2階・4階(屋上含む)
所在地 :名古屋市中区新栄2丁目1番34号
リアル新栄ビル2階・4階(屋上含む)
リノベスタジオの営業時間:10:00~17:30(時間貸しの場合は応相談)








