2つの住戸を1つにつなげる団地リノベーション 『ニコイチ』プラン決定 団地の部屋に「広縁」や「通り庭」、「インナーテラス」等が登場 90m2の広々空間に二世帯同居ができるプランも!
大阪府内で賃貸住宅の提供などの事業を行う大阪府住宅供給公社(本社:大阪市中央区、理事長:堤 勇二、以下 公社)は、寝屋川市にある香里三井団地と香里三井B団地で、民間事業者の設計・施工により子育て世帯や若年夫婦向け2戸1化リノベーション(『ニコイチ』)のプランを決定したことをお知らせします。
今年度は、上記2団地の8住戸6プランと、7月にプランが決定した茶山台団地(堺市南区)の5住戸3プランの、合わせて13住戸で9プランの『ニコイチ』を手掛けることで、子育て世帯や若年夫婦などの若年層を誘引し、地域のまちづくりに貢献していきます。

公社では、空家の増加や高齢化が進む高経年の団地に子育て世帯や若年夫婦などの若年層を誘引するため、民間事業者のノウハウを活用した多様でデザイン性の高いリノベーション住戸を2014年度から供給しています。
その中で、隣り合う2つの住戸を1つにつなぎ合わせ、既存の間取りから大きく形を変えたプランにリノベーションをする公社独自の取り組みである『ニコイチ』を実施しています。
『ニコイチ』は2015年度の事業開始以来、これまで計16プラン・19戸を施工し、昨年度の募集時には最高応募倍率11倍を記録するほどの人気を得ています。
今回、香里三井団地・香里三井B団地(寝屋川市)の2団地で『ニコイチ』について設計・施工・監理・あっせんを行う民間事業者の募集を行ったところ、2グループからの応募があり、審査の結果、「星田逸郎空間都市研究所」を選定しました。今後は来春頃(予定)の入居をめざし施工をします。
▽選定結果の詳細はこちらをご覧ください。
URL: https://www.osaka-kousha.or.jp/x-whatsnew/2018_Improvement_business_suggestion/kekka2.html
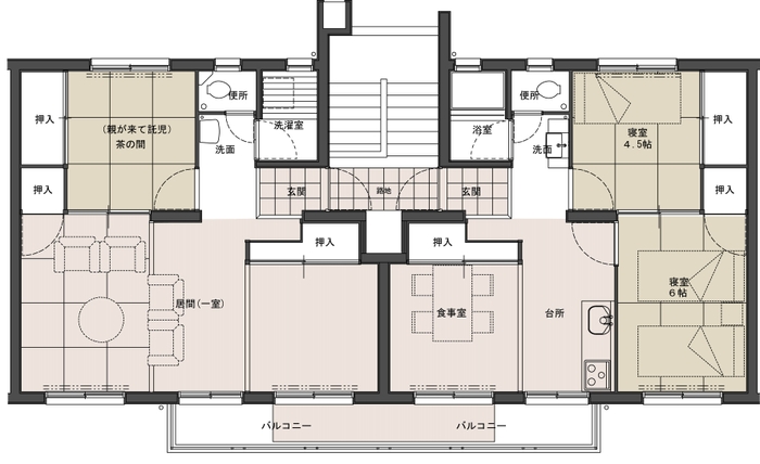
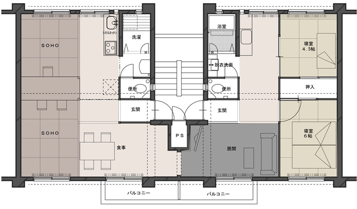
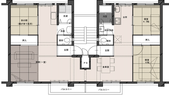
今回提案があった6つのプランは、「大きな開放空間でのびのび子育てプラン」「二世帯同居も可能な安心子育てプラン」「近居の親の託児協力や、友人と共同託児できるプラン」など、それぞれ特徴が異なる、遊び心に満ちたオンリーワンのプランが集まりました。
▽各プランの概要はこちらをご覧ください。
https://www.atpress.ne.jp/releases/169239/att_169239_1.pdf
最優秀作品提案者「星田逸郎空間都市研究所」の選定理由
古いものを新しい「魅力」に転換していくことで生まれるデザインの提案であり、既存部分をデザインの一部に取り込むことによる資材の合理化や施工工数の縮減により、コスト面の課題を解決する高経年団地における新たなリノベーションの可能性を感じさせる提案でした。また、躯体の特性を活かしたプランとなっており、香里三井団地の「ひろえんの家」では間口、約14メートルの南領域の開放性の価値を、香里三井B団地の「トオリニワの家」では南北の開放性の価値を、それぞれ現代のくらしにおいて最大限活かした提案となっているため、最優秀作品として選定しました。
香里三井団地概要
所在地 :寝屋川市三井が丘1丁目1番
総戸数 :340戸
構造 :鉄筋コンクリート造5階建
住戸専有面積:44.58m2
入居開始 :1969年(昭和44年)2月
交通 :京阪本線「香里園」駅よりバス約12分
「三井団地」バス停より徒歩約1分
香里三井B団地概要
所在地 :寝屋川市三井が丘1丁目9番
総戸数 :258戸
構造 :鉄筋コンクリート造5階建
住戸専有面積:44.98m2~45.11m2
入居開始 :1969年(昭和44年)8月
交通 :京阪本線「香里園」駅よりバス約12分
「三井団地」バス停より徒歩約1分
◆会社概要
商号 : 大阪府住宅供給公社
代表者 : 理事長 堤 勇二
所在地 : 大阪市中央区今橋2丁目3番21号
設立 : 1965年11月
事業内容 : 賃貸住宅の管理事業、宅地管理事業、府営住宅の指定管理業務等
基本金 : 3,100万円(全額大阪府出資)
公式WEBサイト: https://www.osaka-kousha.or.jp


















