愛媛県東温市がテレワーク対応の移住体験住宅を新築 令和3年4月に「お試し移住」を開始
東温市(市長:加藤章)は、令和3年度から移住者向けの新たな支援策として、テレワークに対応した移住体験住宅を開設します。
こちらの移住体験住宅は高速インターネット通信環境を整備済みで、背景を気にせずオンライン会議ができるようパーティションを設置したり、リビングでもテレワークが可能となるスペースを設けたりするなど、テレワークに対応しています。また、玄関に手洗い場を設けるなど、新型コロナウイルス感染症対策も行っています。
東温市はスーパーマーケットやショッピングセンターなど生活に必要な施設が揃っていること、全国的にも高いレベルで医療体制が充実していること、県庁所在地である松山市に隣接し、その中心部まで車・電車で30分程度と通勤・通学にも便利であることなど、豊かな自然を持ちながら高い利便性を備えたまちですが、その住環境を体験するための長期滞在可能な施設がありませんでした。そこで、移住検討者からの問合せも多かった移住体験住宅を東温市南方(みなみがた)の旧医師住宅跡地に新築することとしました。移住体験住宅の利用開始は令和3年4月中を予定しており、最長2か月間利用することができます。
コロナ禍で地方移住を検討する方が増加している中、東温市では、この「お試し移住」ができる住宅を活用しさらなる移住促進を目指します。

東温市移住体験住宅について
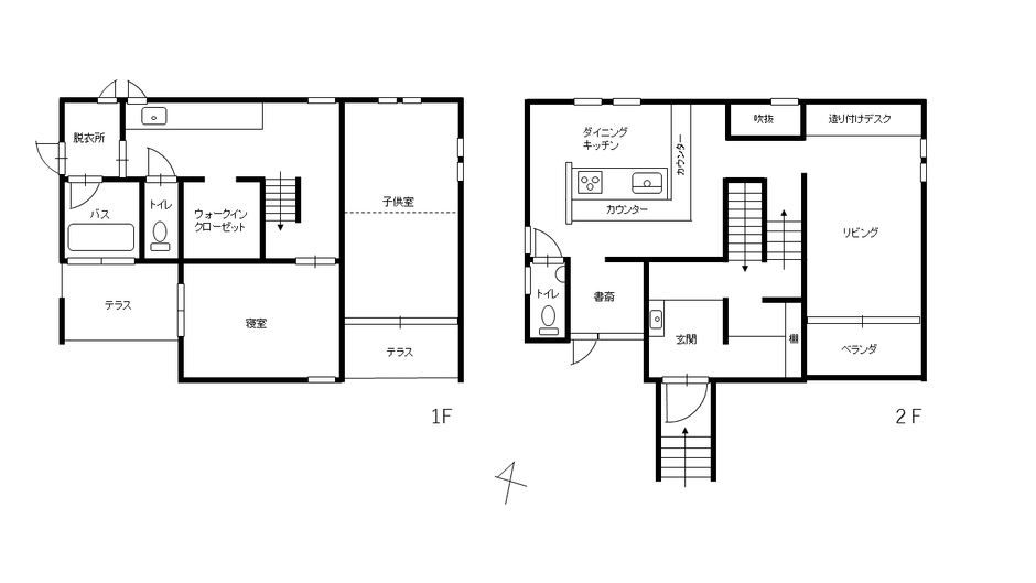
建物概要: 木造2階建て 3LDK
所在地 : 東温市南方262番地
敷地面積: 419.67m2(126.95坪)
延床面積: 1F 46.78m2、2F 50.10m2、合計96.88m2
対象者 : 移住を検討している市外に住所を有する方で、
暴力団員・暴力団員関係者でない方
費用 : 使用料 28,000円/月
光熱水費 15,000円/月
※ただし、電気代・上下水道代が15,000円を超過した場合、
超過分は利用者負担となります。
設備 : 家具・家電・食器・調理器具・インターネット環境(wifi)・
空気循環式紫外線清浄器
間取り図:

室内の様子(3月8日撮影):





参考
東温市移住・定住支援ポータルサイト https://toon-iju.com/10422.html
※対象者、利用料等は3月10日現在の情報であり、変更となる可能性があります。








