福岡県久留米市に初出店! シェアオフィス「billage KURUME」2021年4月オープン
シェアオフィスの企画・運営を行う株式会社MJE(本社:大阪市中央区、代表取締役:大知 昌幸)は、株式会社文尚堂(本社:熊本県人吉市、代表取締役:岩本 泰一)と提携し、2021年4月にシェアオフィス「billage KURUME 明治通ビル」を開設いたします。オープンに先駆け、2月24日より入居者の募集を開始します。

新型コロナウイルスの影響を受け、テレワークが急速に普及したことでオフィスの在り方は大きな転機を迎えており、都心部のオフィス離れが加速し、郊外や地方に分散型オフィスを構える企業が増加しています。
この度、リモートワークや分散型オフィスとして利用可能なシェアオフィス「billage」を、福岡県久留米市に開設いたします。久留米市は、福岡県南西部に位置する県下3番目に大きな都市で、新幹線の停車駅があるなど利便性にも恵まれています。
「billage KURUME 明治通ビル」は、西鉄久留米駅から徒歩7分の好立地な場所にあります。少人数向け個室オフィスを備えており、個人事業主やリモートワークの方のワークスペースとして、また、新拠点立ち上げのための事務所としてぴったりです。オープンスペースや会議室も併設しており、来客対応やweb会議、利用者間の情報交換の場としても利用可能です。利用者が快適に過ごせるよう、消毒液の設置等の感染症対策も行っています。
今後も利用者のニーズを伺いながら、働く場所の生産性向上に寄与できるよう、billageサービスの価値向上に努めてまいります。
施設概要
施設名 : billage KURUME 明治通ビル
所在地 : 福岡県久留米市日吉町26-36 明治通ビル4F
アクセス: 西鉄天神大牟田線 西鉄久留米駅 徒歩7分
延床面積: 88.7平方メートル
開設日 : 2021年4月1日
運営会社: 株式会社文尚堂
URL : https://billage.space/kurume_meijidori
スケジュール
2021年2月24日~入居者の募集開始
2021年3月10日~内覧開始
2021年4月1日 オープン
※上記スケジュールは予告なく変更される場合がございます。ご了承ください。
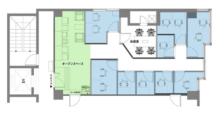
フロアマップ

※本発表時点のものです。フロアマップは予告なく変更になる可能性があります。
billageについて
billageは、新たなイノベーションを生み出す拠点として誕生した、ヒト・モノ・カネ・情報が集まるシェアオフィス施設です。フレキシブル性の高いオフィスの提供やコミュニティ形成によるビジネス支援などを行っています。
詳細: https://billage.space/
株式会社文尚堂について
本社所在地: 熊本県人吉市九日町48
代表 : 代表取締役 岩本 泰一
設立 : 1948年(昭和23年)10月
URL : https://b-do1895.jp/
株式会社MJEについて
本社所在地: 大阪府大阪市中央区久太郎町4-1-3 大阪センタービル6F
代表 : 代表取締役 大知 昌幸
設立 : 2006年12月
URL : https://mjeinc.co.jp/
新設拠点および内覧に関するお問い合わせ先
株式会社MJE
billage運営事務局
E-Mail: contact@billage.space



