福岡・薬院大通駅近くの新築デザイナーズビル 「The Cat」 5月8日にテナント募集開始!
福岡市中央区薬院に誕生したばかりの新築ビル「The Cat」(運営:株式会社GCAT)では、ビジネスの新たなステージを求める企業様に向けて、テナント募集を2025年5月8日に開始いたしました。
駅近の好立地、充実した設備、そして新築ならではの快適な空間が、企業様の事業を力強くサポートします。

物件情報
・所在地 :福岡市中央区薬院4-1-4
・駅からの距離 :薬院大通駅 徒歩30秒
・建物 :新築鉄筋コンクリート造
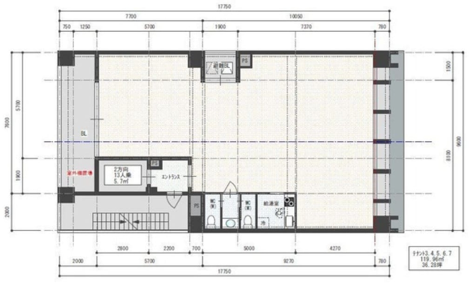
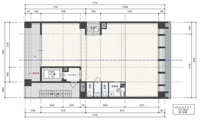
・面積 :36.28坪 119.96m2
・賃料 :月額62万円~(税抜)
・管理費等 :賃料に準ずる
・敷金 :家賃8ヶ月分
・礼金 :なし
・設備・サービス:- OAフロア
- 天井埋込4wayエアコン(3台)
- 最新のLED照明設備
- 高速光インターネット環境
- 24時間365日ALSOKによるセキュリティシステム
- エレベーター完備
- 専用トイレ
- 給湯設備(IHキッチン)
・用途 :オフィス、事務所、店舗、クリニック等(業種はご相談ください)
・法人登記 :可能
・契約条件 :5年契約、更新料あり
・入居可能時期 :即日入居可能


物件の特徴
・駅徒歩30秒の好立地
薬院大通駅までわずか徒歩30秒というアクセス抜群のロケーションは、従業員の方々の通勤はもちろん、顧客の来訪にも非常に便利です。
・2025年新築のプレミアムオフィス
最新の耐震基準と設備を備えた新築ビルは、快適で安全なオフィス環境を提供し、企業イメージの向上にも貢献します。
・スーパーマーケット隣接
日常の買い物にも便利なスーパーマーケットが隣接しており、従業員の利便性を高めます。
・大手地銀2行が徒歩圏内
金融機関へのアクセスも容易で、ビジネスの効率化をサポートします。
・ワンフロア貸し
各テナント区画は独立性の高いワンフロアとなっており、企業様のニーズに合わせた自由なレイアウトが可能です。プライバシーも確保され、集中できるオフィス環境を実現します。
・充実したセキュリティ
最新のセキュリティシステムを完備しており、入居企業様の安全・安心をしっかりと守ります。


管理会社の紹介
サカグチホールディングスパートナーズ株式会社
お問い合わせ先
サカグチホールディングスパートナーズ株式会社
担当:岡本
TEL :092-739-0880
詳細な募集区画、賃料、間取り図等につきましては、お気軽にお問い合わせください。
お問い合わせの際に、『募集記事を見た』とお伝えいただくとスムーズです。
※尚、下記の業種はご遠慮いただいております。
・飲食業
・フィットネスジム
・保育園












