都心から60分、雄大な海を眺めながら過ごす、 湘南の別荘のようなバケーションホテル 「THE HARBOR TERRACE」が様々な利用シーンで 活用出来るスペース「THE HARBOR SPACE」をオープン
~非日常空間をビジネスや撮影、ワークショップ、 イベントなど様々な利用シーンに活用いただけます~
湘南の別荘のようなバケーションホテル運営する株式会社 THE HARBOR TERRACE(逗子市小坪、代表取締役:井上 武夫)は、この度、非日常空間を味わえる「THE HARBOR TERRACE」をビジネスシーンや撮影、ワークショップなどイベント、ウエディングまで使用できるスペースレンタルサービス「THE HARBOR SPACE」を2022年6月9日よりスタートします。


「THE HARBOR TERRACE」は湘南のコーストラインで随一のオーシャンフロントホテル。
客室からは何も遮るものがなく海を眺められ、心地良い波音をBGMに日常の喧噪から離れた空間でのんびりと過ごす事が出来ます。
まるで別荘での休日を過ごすかのように過ごし方は自由自在なバケーションホテル。
THE HARBOR SPACE概要
プランA
・ビジネスmtg・商談・研修等
ビジネスシーンにおいて、非日常空間を利用したmtgや商談、社内研修など都心から60分という立地で様々なビジネスシーンに活用いただけます。
利用可能施設:スイートルーム
利用料金 :60,000円~/2h~
※シーズン、利用人数により料金は変動いたします。
利用可能時間は13時~20時(時間外は要相談)


利用スペース図面


プランB
・イベント、スタジオ利用他
イベントスペースや撮影スタジオとして、スチール撮影や動画撮影など様々な撮影シーンにおけるスペースをご提供いたします。
利用可能施設 :ルーフトップ
ルーフトップ利用料金:50,000円~/1h~
※シーズン、利用人数により料金は変動いたします。


利用スペース図面

プランC
・レストラン利用 企業レセプションパーティーや新商品発表、ウェディングやパーティーまで利用可能
プライベート空間ならではの企業レセプションパーティーやウエディングパーティーや2次会、企業主催のパーティーなど、普段とは違った非日常空間で特別な時間を演出します。
コース料理での提供やケータリングなど、各種対応しております。
利用可能スペース :レストラン
レストラン利用料金:要相談
※企画内容及びお料理の内容等で料金を決定させていただきます。予めご相談ください。


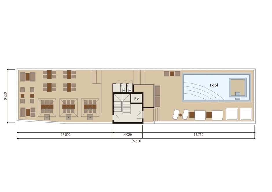
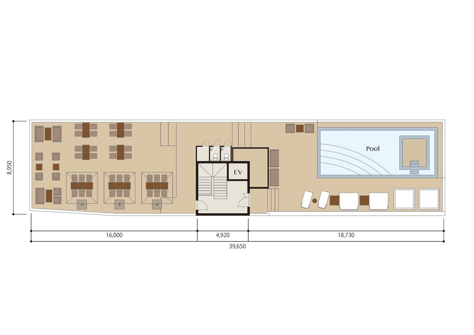
利用スペース図面

『THE HARBOR TERRACE 』施設概要

雄大な海を眺めながら過ごす、湘南の別荘のようなバケーションホテル。
鎌倉 材木座から逗子への抜け道に隠れ家のように佇むTHE HARBOR TERRACE。
エントランスを抜ければ、目の前には雄大な海が広がり、稲村ケ崎や江ノ島、富士山を真正面に望む最高のロケーション。
「THE HARBOR TERRACE」は湘南のコーストラインで随一のオーシャンフロントホテル。
客室からは何も遮るものがなく海を眺められ、心地良い波音をBGMに日常の喧噪から離れた空間でのんびりとお過ごしいただけます。
夕食にはお部屋のキッチンで料理を作ったり、レストランで食事をしたり、まるで別荘での休日を過ごすかのように過ごし方は自由自在なバケーションホテル。
アクセス
所在地:〒249-0008 神奈川県逗子市小坪5-14-7
敷地内3台(有料/中型車まで)、近隣にコインパーキングあり(有料)
敷地内の有料駐車場をご利用の場合は、事前にご予約ください。先着順でのご案内になります。
お車でお越しの場合
・横浜横須賀道路朝比奈I.C.から約30分
・新湘南バイパス茅ヶ崎海岸I.C.から約60分
電車でお越しの場合
・JR 横須賀線、江ノ電の鎌倉駅からタクシーで約10分
・JR 横須賀線、江ノ電の鎌倉駅から京急バス『鎌40・41』で約9分「飯島」下車
画像・動画素材について
本リリース内の画像は、以下のサイトよりダウンロードが可能です。
本件に関する問い合わせ
株式会社 THE HARBOR TERRACE
広報担当 : 0467-39-5188
E-mail : media@theharborterrace.jp
公式サイト(PC・携帯) : https://the-harbor-terrace.com/
公式Instagram(PC・携帯): https://www.instagram.com/the_harbor_terrace.official/














