自宅でサウナ・アイスバスに入れる「トレーラーサウナ」 12月1日にクラウドファンディングを開始
~サウナへ行く時代からサウナが届く時代へ~
Trailer Sauna Hokuto(所在地:新潟県長岡市、代表:水落 北斗)は、自宅でサウナ・アイスバスに入れる「トレーラーサウナ」の先行予約販売をクラウドファンディングサイト「CAMPFIRE」にて2024年12月1日(日)に開始しました。
「CAMPFIRE」クラウドファンディングサイト
https://camp-fire.jp/projects/807369/view?utm_campaign=cp_po_share_c_msg_mypage_projects_show

開発背景
*自宅でサウナ→水風呂→整いまでをすべてできるサービスを提供したい。
*サウナ施設、銭湯がサウナブームにより常に混んでいる。
*自分の好きなことで地域を盛り上げたい。
特徴
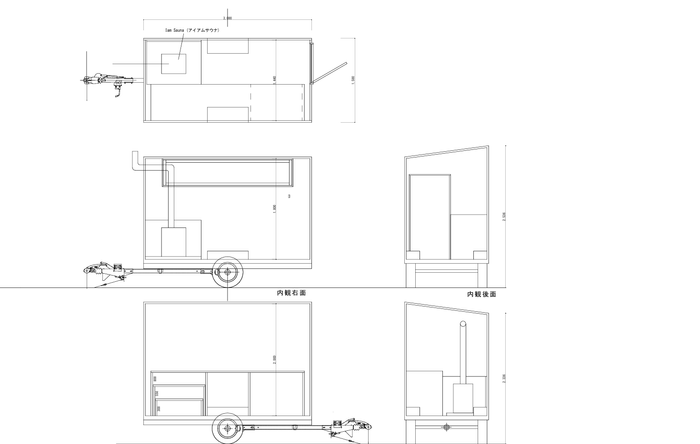
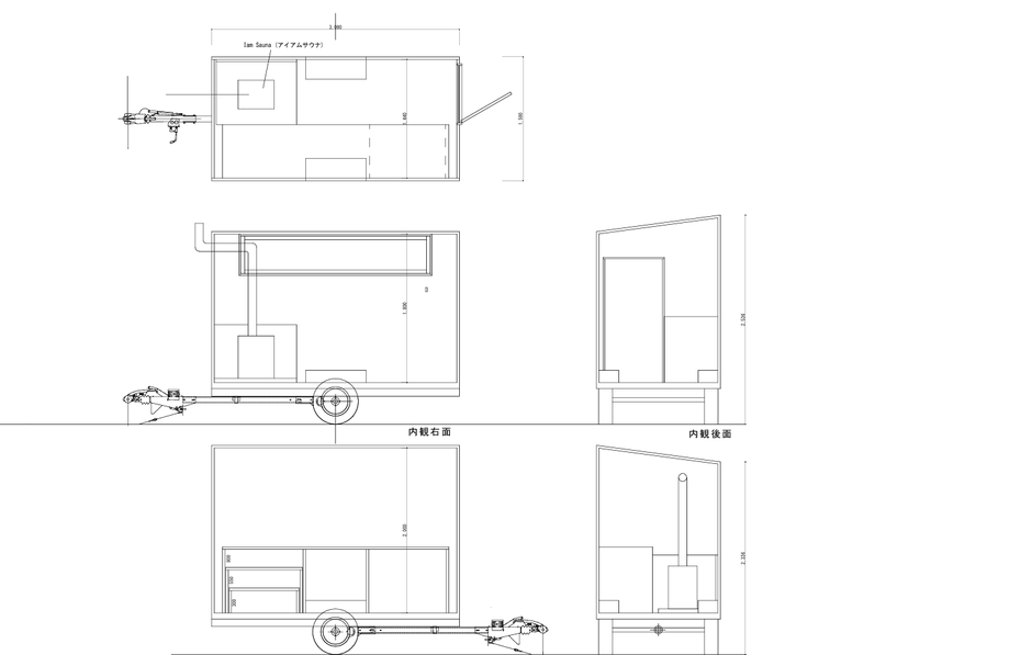
*新潟初の移動式トレーラーサウナ
木製トレーラーサウナを特注でオーダーし作成。座面の高さ、天井の勾配、吸気排気口の位置、サウナストーブにサウナストーン、やるからには徹底的に、移動式のレベルを超越したトレーラーサウナが自宅まで届きます。
*キンキンに冷えた水風呂に入れる。
冷却機能付きのアイスバスもサウナと一緒に届けます。10℃以下まで冷却できるバスをセッティングまで行い、朝にはお好み温度になっている状態で究極の温冷交代浴をお楽しみいただけます。
*そのほかサウナに必要なものをフルセットでお届け
Colemanのインフィニティチェア3脚、IKEUCHI OGANICの高品質サウナポンチョ、薪、ヴィヒタ、ロウリュアロマまで、追加オプションなどなく、すべてフルセット、フルセッティングを行ってお届けします。

リターンについて(税込)
8,888円 :「Trailer Sauna Hokuto」のオリジナルステッカー、
刺繍入りの今治タオル
55,555円:トレーラーサウナに刻印
木札に企業名、個人名をレーザーで刻印し共に走ります。
29,000円:1dayベーシックコースの3,000円早割券。
長岡市・小千谷市在住の方限定
プロジェクト概要
プロジェクト名: 長岡市・小千谷市の自宅へトレーラーサウナとともに
キンキンに冷えた水風呂も届けたい
期間 : 2024年12月1日(日)12:00~2025年1月28日(火)24:00
URL : https://camp-fire.jp/projects/807369/view?utm_campaign=cp_po_share_c_msg_mypage_projects_show
製品概要
商品名 :トレーラーサウナ貸出レンタル
種類 :木製トレーラーサウナ
内容 :木製トレーラーサウナ、アイスバス、テント2.5×2.5、
インフィニティチェア、サウナポンチョ、薪、ロウリュアロマ、
ヴィヒタ
サイズ :トレーラーサウナ…横幅約約1,500mm、縦長約3,000mm、高さ約2,536mm
アイスバス…直径約1,500mm、高さ約500mm
素材 :トレーラーサウナ 杉の芯に近い赤身の柾取りの無節材を使用
販売場所:ご自宅、ご希望の場所へお届けします。

会社概要
屋号 : Trailer Sauna Hokuto
代表者 : 代表 水落 北斗
所在地 : 〒940-1140 新潟県長岡市上前島2丁目2002
設立 : 2024年10月
事業内容: トレーラーサウナ貸出レンタル事業
URL : https://saunahokuto.com/






