鎌倉に高気密・高断熱の賃貸住宅「鎌倉雪ノ下テラスハウス」が竣工 5/27(土)・5/28日(日)に完成見学会を開催
住まいるサポート株式会社(所在地:神奈川県横浜市港北区、代表取締役:高橋 彰)が企画・コーディネートし、HAN環境・建築設計事務所(所在地:東京都世田谷区、代表:松田 毅紀(一級建築士))が建築設計を行った高気密・高断熱の賃貸住宅が神奈川県鎌倉市雪ノ下に竣工いたしました。
2023年6月中旬からの賃貸住戸募集開始に先立ち、5月27日(土)、5月28日(日)(両日とも11:00~17:00)に完成見学会を開催します。

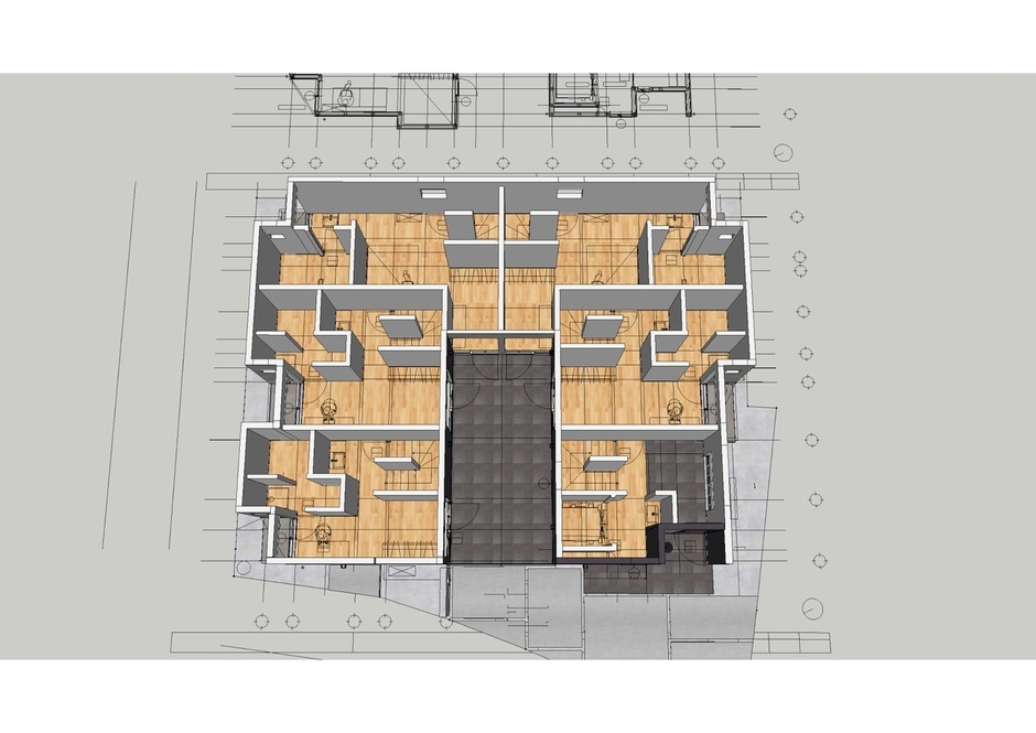
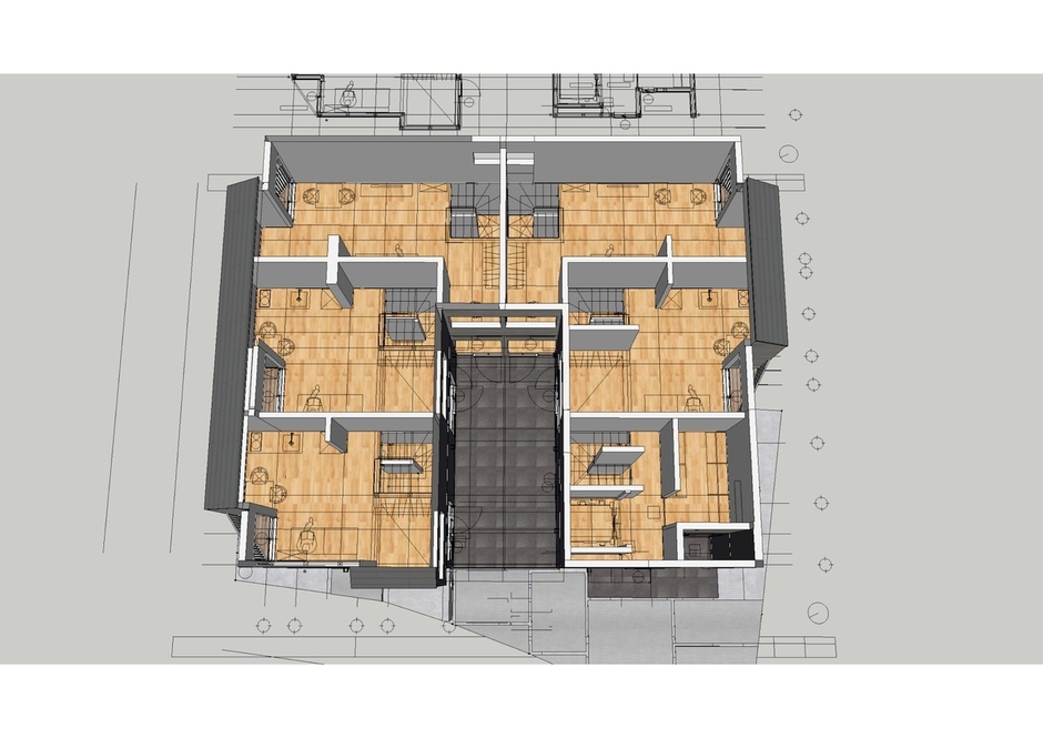
神奈川県鎌倉市雪ノ下に高気密・高断熱の賃貸住宅が竣工いたしました。鎌倉駅から徒歩8分、小町通りからすぐ近くの好立地に建つ木造地上3階建て(3階はオーナー住戸)の高性能賃貸住宅です。全戸メゾネットの2階リビング、大きな土間やテレワークを想定した特色のある間取りで、シングルもしくは二人暮らしを想定した住戸構成になっています。


断熱性能は、オーナー住戸がUA値0.36(断熱等級6以上)、賃貸住戸は、UA値0.46×2住戸(断熱等級6・HEAT20 G2)、UA値0.55×3住戸(断熱等級5・HEAT20 G1)の高断熱かつ、建築家の設計による洗練されたデザインの賃貸住宅です。
なお、高気密仕様になっており、気密測定を近日中に実施予定。完成見学会までには、C値が確定している予定です。
高気密・高断熱化により、入居者は、結露のない冬暖かく夏涼しいとても快適な居住環境と冷暖房光熱費を抑えた暮らしが実現できます。
我が国では、高気密・高断熱の賃貸住宅の供給は極めて少なく、特に断熱等級6レベルの高断熱賃貸住宅は、まだとても希少であるのが実情です。
我が国の家庭部門の省CO2が喫緊の課題となっている中で、賃貸住宅の省エネ化も非常に重要であり、その先駆けとなるプロジェクトとなることを企図しています。
本物件は、高気密・高断熱住宅の住まいづくりのサポートを行う「住まいるサポート株式会社」が運営する【建築家と創る高気密・高断熱住宅 Archi Concier(アーキコンシェル)】 https://sml-support.com/archiconcier という建築家のマッチングサービスにより、住まいるサポート株式会社が企画・コーディネートを行い、
建築設計は、高気密・高断熱住宅を得意とするHAN環境・建築設計事務所が担当しました。
賃貸住戸の募集開始は、6月中旬を予定しています。賃貸募集開始に先立ち、5月27日(土)、5月28日(日)(両日とも11:00~17:00)に完成見学会を開催します。どなたでも参加いただくことが可能です。参加を希望される方は、HAN環境・建築設計事務所のホームページからお申し込みいただけば、詳しい住所等をご連絡いたします。
https://www.han-arc.com/
なお、5/20(土)13:00~14:00に、住まいるサポート株式会社代表取締役の高橋 彰とHAN環境・建築設計事務所代表の松田 毅紀が登壇する無料オンラインセミナー「キーワードは『高気密』&『高断熱』入居者満足度アップで空室率を劇的改善新時代の賃貸住宅経営」が開催されます。
詳細・申し込みは以下のURLからご確認ください。
https://gentosha-go.com/ud/seminar/id/6438a39eb57622a66f000000
会社概要
商号 : 住まいるサポート株式会社
所在地 : 神奈川県横浜市港北区新横浜3-7-18
代表者 : 代表取締役 高橋 彰
事業内容 : 住まいづくりのサポート事業
・高気密・高断熱のハウスメーカー・工務店の紹介事業
・デザインと性能を両立する建築家のマッチングサービス
TEL : 045-900-9795
URL : https://sml-support.com/
商号 : HAN環境・建築設計事務所(一級建築士事務所登録番号:57295 東京都)
所在地: 東京都世田谷区梅丘1-59-28 梅ラウンジ 1F
代表者: 松田 毅紀(一級建築士)
TEL : 03-5799-4285
URL : https://www.han-arc.com/









