愛知県名古屋市港区に待望の複合商業施設が誕生 「名古屋ちゃやまちモール」 2026年1月29日(木) グランドオープン
「一人ひとりが、輝く明日を。」をコミュニケーションワードに多彩な事業を展開する、株式会社 新昭和(本社:千葉県君津市、代表取締役社長:松田 芳己)は、愛知県名古屋市港区(茶屋新田)において、複合商業施設「名古屋ちゃやまちモール」を2026年1月29日(木)にグランドオープンさせる運びとなりました。
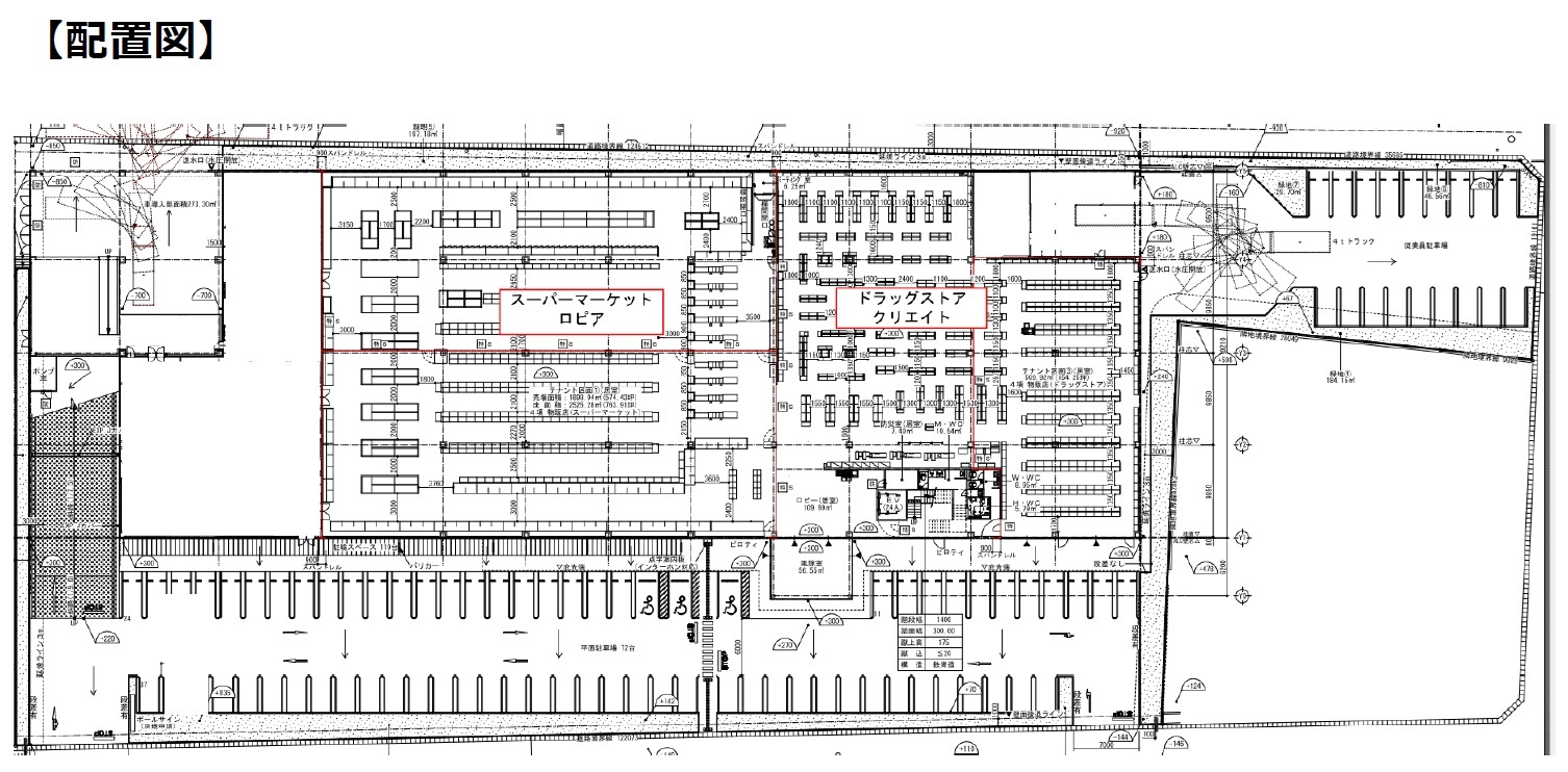
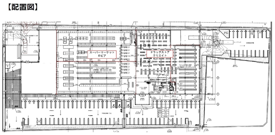
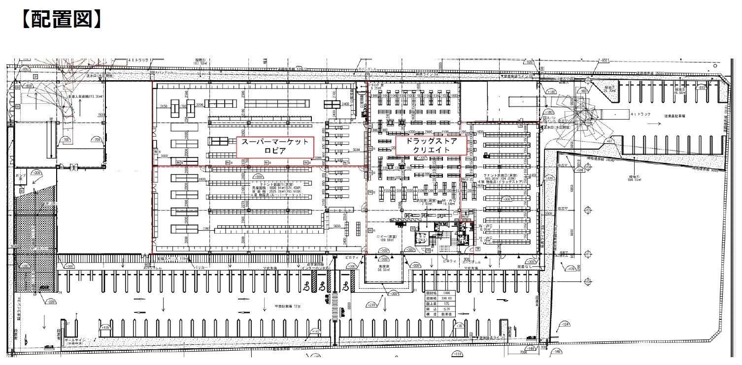
同施設は、市南西部の新たな拠点として発展を続ける、茶屋新田区画整理地内に整備され、敷地面積は8,432.55m2(2,550.84坪)となります。また、同整理地内のコンセプトの1つ、「自然と触れ合える良好な居住環境の形成」を踏襲し、敷地内や屋上などの緑化も積極的に取り入れた施設となります。建物は平屋建て+屋上駐車場となり、食生活♡♡ロピア、ドラッグストア クリエイトSDがオープンします。

「名古屋ちゃやまちモール」は、商圏を3km圏内に絞った地域密着の商業施設となります。周辺には、東京インテリア家具様、イオンモール名古屋茶屋様、スーパーセンタートライアル様、ヤマダデンキ様、ココス様、ネクステージ様など、様々な商業施設が展開しており、それらとのシナジー効果も期待されております。また、当社はこれまでも首都圏を中心に様々な商業施設を手掛けてまいりましたが、愛知県では「あさひまちモール」に次ぐ2施設目となります。地域の皆様の生活利便向上を図るために、地域密着スタイルを徹底した「毎日利用できる施設」として、スーパーマーケット、ドラッグストア、100円ショップ、飲食店など、地域に必要な商業ニーズに特化した、利用価値の高い業態をコンパクトに集約させているのが特徴です。
テナント数:2テナント
No :1
店舗名 :食生活♡♡ロピア
業種 :スーパーマーケット
延床面積(店舗床面積):2,665.68m2(806.36坪)
区画番号 :(1)
オープン日 :1月29日
No :2
店舗名 :クリエイトSD
業種 :ドラッグストア
延床面積(店舗床面積):1,236.02m2(373.89坪)
区画番号 :(2) (3)
オープン日 :1月29日
配置図

当該地MAP


施設概要
所在地 :愛知県名古屋市港区川園1丁目65番
(愛知県名古屋市港区茶屋新田区画整理地内99街区1-2、99街区2)
事業主 :株式会社 新昭和
敷地面積 :8,432.55m2(2,550.84坪)
階数・構造:平屋建て・鉄骨造
駐車場 :車 191台、東京インテリア家具 名古屋本店様共同駐車場 96台
建築面積 :4,877.06平方メートル(1,475.31坪)
延床面積 :4,500.87平方メートル(1,361.51坪)
設計 :アスク環境開発株式会社
施工 :生川建設株式会社
開業 :2026年1月29日オープン
交通 :名古屋第二環状自動車道「南陽」IC 約650m
名古屋臨海高速鉄道あおなみ線「荒子川公園」駅 約4,700m
新昭和グループとは
新昭和グループは、株式会社 新昭和として、ツーバイフォー工法が日本で認可された翌年にいち早く販売をスタートし、高い専門性と技術革新力で、末永く快適に暮らせる確かな住まいづくりに携わってきました。2017年ホールディング体制へ移行後は、住まいだけでなく、環境、教育、健康に関する事業など、様々な分野に進出することで、みなさまの暮らしに寄り添いながら、より豊かで充実した暮らしをお届けできるようになりました。私たちはこれからもグループ一丸となって、皆様が安心・快適に暮らせる街づくりの実現へ取り組んでいきます。


新昭和 公式サイトURL: https://www.shinshowa.co.jp/
アセット事業への取り組みについて
近年、不動産に関するニーズは「所有」から「運用」へと大きく変化しつつあり、「不動産アセット事業」への関心が高まってきています。私ども新昭和では創業以来培ってきた、地域ネットワークと優良テナント企業様との密な情報交流を結びつけ、より豊かで潤いのある街づくりとなる《創出型のアセット事業》を今後も積極的に推進しています。

新昭和グループは、SDGsに参画しています










