コロナ禍以降の都市居住のあり方を考察した リノベーション戸建てがリノベーション・オブ・ザ・イヤー2021で 部門最優秀賞を受賞
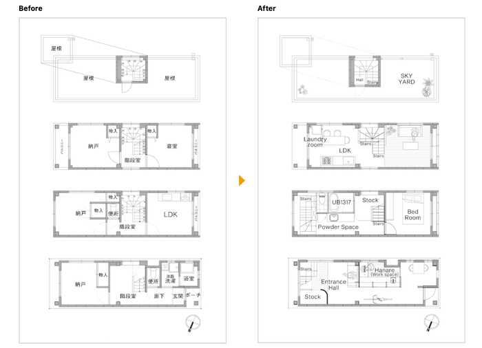
『都市型戸建を再構成する。』 神戸市灘区の築35年、3階建の狭小戸建のリノベーション事例
株式会社アートアンドクラフト(本社:大阪市西区、取締役社長:枇杷 健一)は、2021年を代表する魅力的なリノベーション事例を選ぶコンテスト「リノベーション・オブ・ザ・イヤー2021」(主催:一般社団法人リノベーション協議会)において、エントリーした『都市型戸建を再構成する。』が、1000万円以上部門最優秀賞を受賞しましたことをお知らせいたします。コロナ禍で郊外に目がいく人やメディアが多いなか「都市に住む人の住まいはどう変わるのか」について、不動産や建築的視点から考え提案した作品です。

アートアンドクラフトが受賞するのは、昨年度に引き続き2年連続。2020年には大阪市にあるコーポラティブハウス都住創をリノベーションした「心を掴むストック 都住創を継ぐ」が「エスセティック空間リノベーション賞」を、2018年にはリノベーション事業開始後20年を記念して開催した、「RENOVATION 1998−2018 リノベーションの20年とこれからの都市とか建築とか」が「リノベーション文化功労賞」を、2017年には「扇状のモダニズム建築、桜川のランドマークへ」が「総合グランプリ」を受賞しています。
受賞作品企画趣旨
想定を超えて長期化している新型コロナウイルスの感染拡大。外出自粛が求められる中、自由に出かけられない辛さを感じながらも、仕事や遊びに出かけて家では眠るだけの忙しい日常って本当に幸せだったの?と、我に返った人も多いはず。とはいえ、リモートワークができるから地方に移住なんて実際にできるのはごく一部。引き続き都市に住む人の住まいはどう変わる?取ってつけたようにワークスペースをはめ込むだけでいいの?
人口が集中するにつれコンパクトになった都市の住まい。求められる役割が減ってしまっていたのではないか。食べて、眠って、身なりを整え、家事をして、仕事をして、余暇を過ごす。目指したのはそれぞれがMIXするのではなく独立して快適な住まい。3階建ての縦に伸びる都市型戸建てというストック特性を活かして、これからの都市居住のあり方を考えたケーススタディ住宅です。
アートアンドクラフトの再販事業
アートアンドクラフトは、1998年に日本で初めてと言われるリノベーション再販事業を開始しました(STOCK & RENOVATION 2014(LIFULL HOME'S総研)より)。そのうち、「クラフトシリーズ」ではリノベーションのアイコニックとなるようなデザインの表現だけではなく、社会的な背景を汲み取り、ユーザー目線に立った商品企画をしています。一戸建てをリノベーションしたクラフトハウスのほか、マンションの一室をリノベーションしたクラフトアパートメント、倉庫を住居にコンバージョンしたクラフトスタジオをこれまでに発表してきました。
会社概要
1994年設立。1998年より本格的に既存建物の“リノベーション”という手法で『均質化されていない住まい』の提案を開始。以降、大阪・阪神間を中心に「自分にあった心地よい住まいが欲しい」「長く愛着の持てる住まいで暮らしたい」そういったひとつひとつの想いが形になるよう、物件探しから資金計画、設計デザイン、施工、アフターメンテナンスまで、ワンストップでサポートしています。
商号 : 株式会社アートアンドクラフト
代表者 : 取締役社長 枇杷 健一
所在地 : 〒550-0003 大阪府大阪市西区京町堀1丁目13-24 1F
設立 : 1994年9月
事業内容: 建築のリノベーション設計及び施工・コンサルティング・不動産・宿泊事業
URL : https://www.a-crafts.co.jp






















