もちいどのWaQWa 2026年11月誕生 次世代の商店街モデルへの挑戦
2026-04-22 12:00
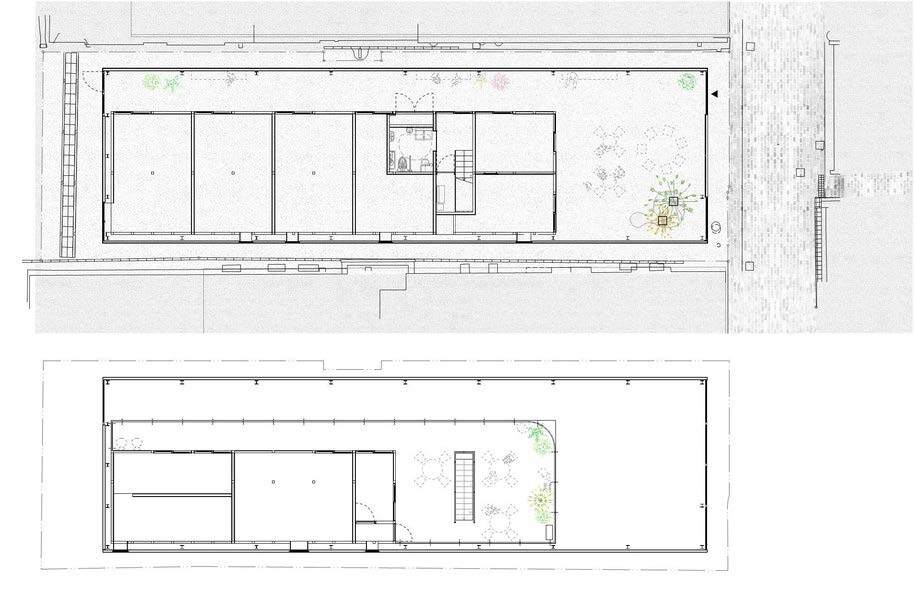
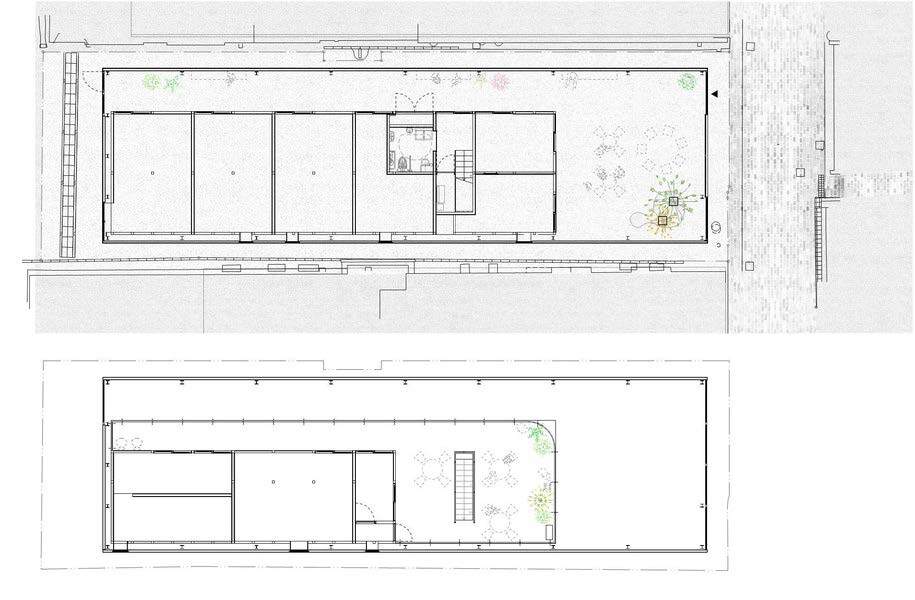
奈良もちいどのセンター街協同組合は、2026年11月に新施設「もちいどのWaQWa」をオープンするにあたり、2026年4月よりテナント募集を開始しました。「夢CUBE」で60人以上の卒業生を輩出してきた実績をもとに、起業家育成・地域交流・情報発信の3機能を連動させた、次世代の商店街モデルの構築を目指します。
名称について
「WaQWa」は、人や地域のつながりを意味する「和・輪(wa)」と挑戦や探求を意味する「Q」、そこから生まれる「ワクワク」の循環を表現した名称です。
なぜ「次世代」なのか
起業家育成・地域交流・情報発信の3機能を商店街がひとつに統合した。個店の集合体ではなく「ハブ」として設計された次世代の商店街施設。
・テナント貸しではなく「ハブ」として設計
・起業家ネットワーク×地域×情報発信が連動

募集枠
(1)アンカーテナント枠: 3枠
エリア外からも集客できる「目的地」型店舗。街の顔として商店街全体を牽引。期間10年。
(2)ネクストステップ枠: 5枠
既存事業の拡大・仕組み化フェーズの事業者。最長3年。
H区画(特別プログラム)
H区画: ミシュランの卵プロジェクト
ミシュラン掲載を視野に入れる料理人を3年限定で支援。卒業後の奈良でのレストラン・オーベルジュ開業が前提。一般的な厨房機器は商店街側が整備し料理に集中できる環境を提供する。
スケジュール
2026年4月 : 記者発表・テナント募集開始
2026年6月 : 書類審査(1・2次)・面談審査
2026年7月末: テナント決定・契約(予定)
2026年11月 : グランドオープン(予定)
募集要項
添付のPDFまたは公式サイトの「募集要項」をご覧ください。
https://yumecube.jp/requirements/






画像・ファイル一覧







